DLM Architects

- Avalon -

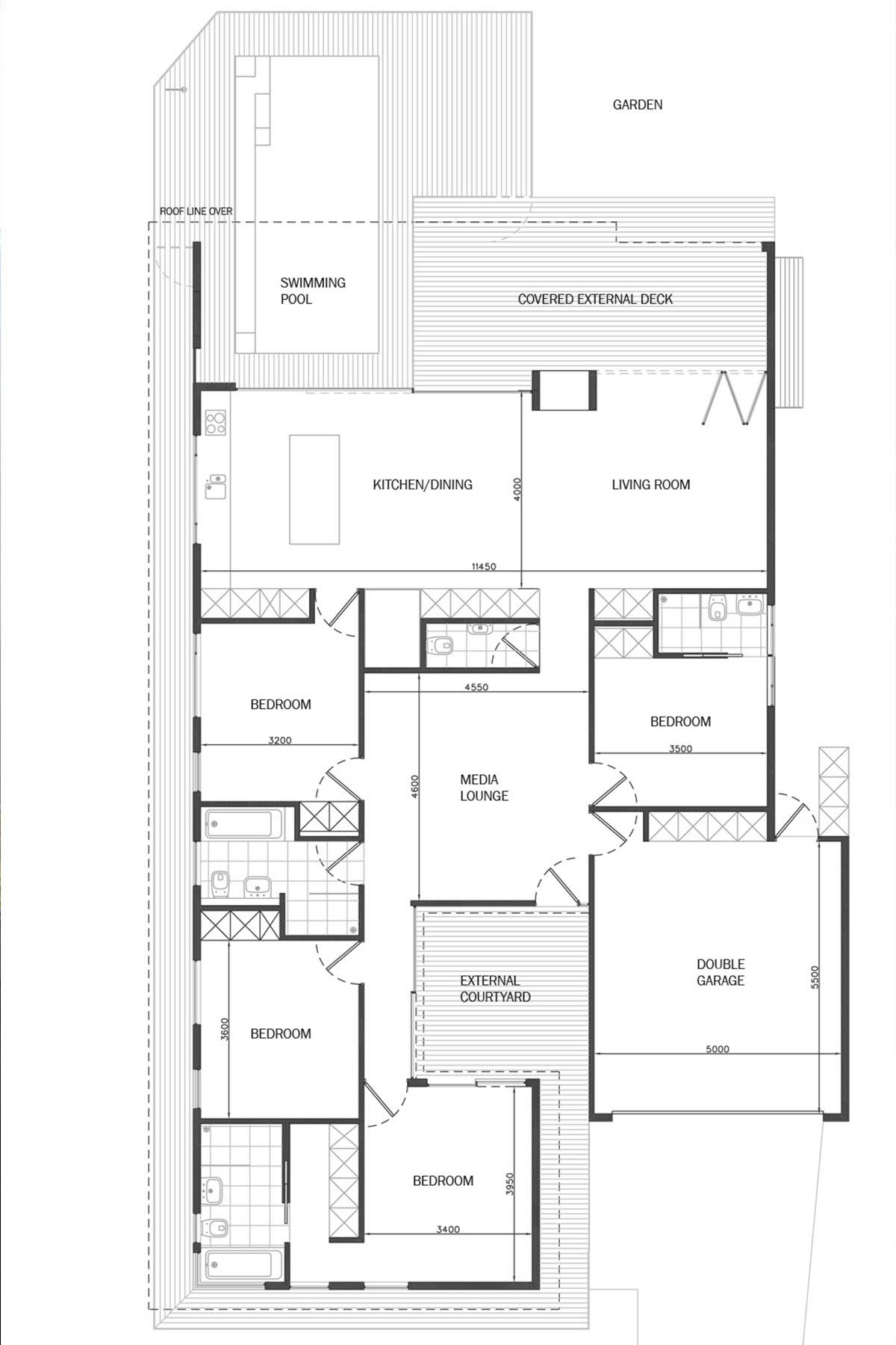
Single-storey timber-framed beach house

The project brief was to create a new-build single level family home located on a sloping beachfront site in Avalon, Sydney.

The design objectives were to maximise site coverage, and utilise orientation to create a range of internal and external amenity spaces for the varying weather extremes that the area endures.

The dwelling is clad in red cedar, which will naturally weather and silver in the marine environment. Elsewhere a highly efficient, low maintenance silicon based render is used.

"Four years on and we enjoy every moment in our home and wouldn't change a thing. The house has an energy and flow that is hard to describe, it just works. DLM Architects undertook every aspect of our brief and delivered us the perfect family home with all the practical features we required, all the style we desired and a design that surpassed any of our expectations. We would have no hesitation recommending or working with them again."
Charles and Em

Bedroom accommodation and services sit as two flanking wings enclosing a series of living spaces beneath two spanning double-height skillion roofs. The roof planes are linked by a band of east-facing glazing that passively ventilates the house through convection, drawing cool air through the bedrooms and across the living spaces.

The highly insulated structure also utilises a solar hot water system, photovoltaic energy production and rainwater collection and use, and can therefore operate as a fully self-sufficient home.

Share this